Neubau eines Medienzentrums im ÖSW
home
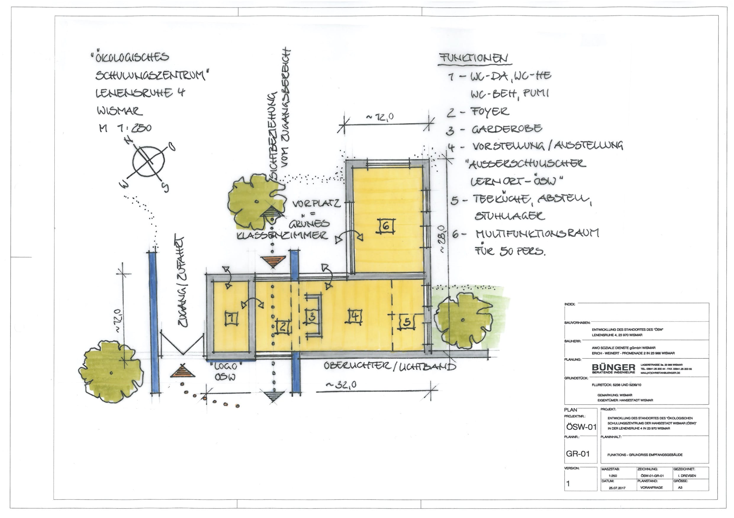
Das Ökologische Schulungszentrum ist landschaftlich eingebettet zwischen dem Naturschutzgebiet „Teichgebiet Wismar-Kluß“ mit Waldgebieten im Norden und Osten sowie der Bahnstrecke Wismar-Bad Kleinen im Westen. Am Standort des Ökologischen Schulungszentrums befinden sich verschiedene Gebäude mit Schulungs-, Werkstatt-, Lager- und Arbeitsräumen. Die Durchführung von Veranstaltungen erfolgt im Freien und in den Schulungsräumen.

Die Bausubstanz der einzelnen Gebäude ist sanierungsbedürftig und entspricht nicht den aktuellen Forderungen des EeG sowie der ENEV. Die Standsicherheit einiger Gebäude/Gebäudeteile (Scheune) kann nicht mehr gewährleistet werden. Da die Bebauungen jedoch fester Bestandteil für die Realisierung der Arbeits-, Lehr- und Demonstrationsangebote sind, ist Handlungsbedarf erforderlich.

Die Protinus Projektentwicklung gGmbH Wismar als Pächter des ÖSW führt die bestehende Nutzung des Geländes als bürgeroffenes Zentrum der Umweltberatung und -erziehung weiter. Angeboten werden Erkundungen von verschiedenen Themengärten mit unterschiedlichen Pflanzen sowie die Gestaltung von Lehrveranstaltungen und Projekttagen überwiegend für Kindertagesstätten, Schulklassen, Vereine.
 
Bauherr
Protinus Projektentwicklung gGmbH Wismar
Bauzeit
Juli 2017
Bauvolumen
600.000 €
Leistungsumfang
Entwurfsplanung